安全阀作用
安全阀是安装在设备、容器或管道上,起超压保护作用,当容器或管道内压力超过允许值时,阀门自动开启排放介质;当压力降低到规定值时,阀门自动关闭。安全阀可根据驱动模式不同分为直接作用式和先导式。直接式安全阀是由阀门进口的系统压力直接驱动,此时,它由弹簧或重锤提供的机械栽荷来克服作用在阀瓣下方的介质压力。先导式安全阀是由一个机构来先导驱动,利用机构释放或施加一个关闭力使安全阀开启或关闭。安全从外部结构上可分为:有无扳手、有无波纹管、有无散热片。

安全阀是安装在设备、容器或管道上,起超压保护作用,当容器或管道内压力超过允许值时,阀门自动开启排放介质;当压力降低到规定值时,阀门自动关闭。安全阀可根据驱动模式不同分为直接作用式和先导式。直接式安全阀是由阀门进口的系统压力直接驱动,此时,它由弹簧或重锤提供的机械栽荷来克服作用在阀瓣下方的介质压力。先导式安全阀是由一个机构来先导驱动,利用机构释放或施加一个关闭力使安全阀开启或关闭。安全从外部结构上可分为:有无扳手、有无波纹管、有无散热片。


型号
A38Y-16C/25/40
A43H-16C/25/40
A37H-16C/25/40
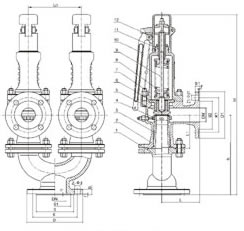
双联弹簧式安全阀实用于工作温度≤350℃的蒸汽、水等介质的设备和管路上。作为超压保护装置。连接法兰尺度按JB/T......94的系列
重要零部件材料阐明
A38Y、A43H、A37H型双联弹簧式安全阀除三通(材料为WCB)外,其余零件的材料均和A47H、A48Y型弹簧式安全阀雷同。
A38Y、A43H、A37H型双联安全阀是在Y型接头上装设两个同样规格的A48Y或A47H型安全阀而构成,其公称通径系列指Y型接头进口通径,其组合情况如下表:
|
|
A43Y型
|
相应的A47Y型
|
|
50
|
32×2
|
|
80
|
50×2
|
|
100
|
80×2
|
|
125
|
100×2
|
|
150
|
125×2
|
|
A37Y型
|
相应的A47Y型
|
|
50
|
32×2
|
|
80
|
65×2
|
|
100
|
80×2
|
|
125
|
100×2
|
|
150
|
125×2
|
双联弹簧式安全阀的外形尺寸和连接尺寸,请接洽我们索取。