平衡阀作用
平衡阀是在水力情况下,起到动态、静态平衡调节的阀门。如静态平衡阀,[动态平衡阀]。 静态平衡阀亦称平衡阀、手动平衡阀、数字锁定平衡阀、双位调节阀等,它是通过改变阀芯与阀座的间隙(开度),来改变流经阀门的流动阻力以达到调节流量的目的,其作用对象是系统的阻力,能够将新的水量按照设计计算的比例平衡分配,各支路同时按比例增减,仍然满足当前气候需要下的部份负荷的流量需求,起到热平衡的作用。 动态平衡阀分为动态流量平衡阀,动态压差平衡阀,自力式自身压差控制阀等。

平衡阀是在水力情况下,起到动态、静态平衡调节的阀门。如静态平衡阀,[动态平衡阀]。 静态平衡阀亦称平衡阀、手动平衡阀、数字锁定平衡阀、双位调节阀等,它是通过改变阀芯与阀座的间隙(开度),来改变流经阀门的流动阻力以达到调节流量的目的,其作用对象是系统的阻力,能够将新的水量按照设计计算的比例平衡分配,各支路同时按比例增减,仍然满足当前气候需要下的部份负荷的流量需求,起到热平衡的作用。 动态平衡阀分为动态流量平衡阀,动态压差平衡阀,自力式自身压差控制阀等。

用处
ZYC型自力式压差控制阀,是一种利用介质自身的压力变更进行自我把持而保持流经该被控系统介质压差不变的节能产品。实用于供热方法采用双管系统的压差把持,保证系统的压差基础不变,减低噪音,平衡阻力,打消热网的水力失调。
工作原理
现以安装在回水管道上的ZYC型自力式压差把持阀为例阐明工作原理。当供水压力p1增大或减小时,信号由连接收传如膜片上腔,带动阀芯下移,使阀座的流通面积减小或增大。P2-P3也增大或减小,直到P1-P2保持原值恒定。当回水压力P3增大或减小的瞬间同阀座流向出口的流速下降或升高,膜片下压力P2也在这个瞬间增高或下降,带动阀芯上移或下移,知道膜片的受力重新平衡,P2恢复原值,P1-P2保护原值恒定,从而保证了被控系统的供回水间压差基础不变。
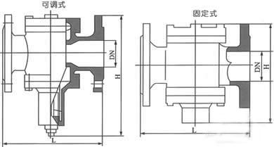
重要外型尺寸
|
DN(mm)
|
连接方法
|
L(mm)
|
H
|
H1
|
流量m3/h
|
实用介质
|
介质温度
|
|
15
|
螺纹
|
110
|
72
|
98
|
0.2-1
|
水
|
0~80℃s
|
|
20
|
110
|
72
|
98
|
0.3-1.5
|
|||
|
25
|
115
|
82
|
102
|
0.5-2
|
|||
|
32
|
法兰
|
160
|
91
|
94
|
1-4
|
||
|
40
|
200
|
147
|
112
|
1.5-6
|
|||
|
50
|
215
|
120
|
112
|
2-8
|
|||
|
65
|
220
|
125
|
120
|
3-12
|
|||
|
80
|
275
|
188
|
133
|
5-20
|
|||
|
100
|
290
|
208
|
160
|
10-52
|
|||
|
125
|
310
|
226
|
175
|
15-45
|
|||
|
150
|
350
|
258
|
195
|
30-80
|
|||
|
200
|
430
|
301
|
230
|
40-180
|
|||
|
250
|
520
|
367
|
265
|
100-300
|
|||
|
300
|
635
|
430
|
300
|
150-500
|
|||
|
350
|
670
|
504
|
340
|
200-700
|

ZYC型自力式压差把持阀的外形尺寸和连接尺寸,请接洽我们索取。