闸阀制作规范
铸钢闸阀结构特点: 结构型式
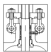
铸钢闸阀采用明杆支架式,螺栓连接阀盖结构(OS&Y,BB型),升降阀杆,不升降手轮,是国际通用的尺度闸阀结构。
阀体和阀盖阀体、阀盖的设计均经过严格的盘算,具有良好的强度、刚度和流通才能,符合尺度规范的规定。阀盖上设计了上密封座,在全开地位使填料密封更为可靠,并方便填料的调换。 闸板
采用H型弹性单闸板,对阀体变形具有良好的适应性,保证了密封的可靠性,避免了闸板因过载关紧而难于开启的现象。因此更能实用于蒸汽及其它高温介质。
阀座对于不同的压力或规格,阀座有以下几种情势:
1、采用阀座圈与阀体螺纹连接或焊接,螺纹连接阀座易于拆卸,便于保护或调换;
2、采用在阀体上直接堆焊密封面材料;
3、对不锈钢阀门,阀座密封面一般在阀体上直接加工成型。 阀杆与阀杆螺母
阀杆与闸板间采用T形槽连接,阀杆T形头整体铸造成型,保证了足够的连接强度。阀杆通过手轮带动阀杆螺母来把持,阀杆与阀杆螺母的螺纹传动采用了适度的配合间隙和奇特的牙型修正处理保证了阀门驱动的机动性。上装式阀杆螺母使阀门在开启地位,即使卸下手轮,阀杆和闸板不会着落。对于高压大口径闸阀,阀杆螺母处设计有推力轴承。
填料和填料隔环填料的尺寸和数目符合尺度请求,并保证了密封的可靠性。填料采用石墨材料(不含石棉)。在用户请求时可供给填料隔环。(尺度型产品不供给填料隔环)
中法兰垫片阀体、阀盖的连接采用螺栓连接的法兰情势。法兰密封垫片情势如下:
CLASS 150和PN1.6,2.5MPa 平面垫片密封
CLASS 300和PN4.0、6.4MPa 凹凸式垫片密封
CLASS 600及以上和PN10.0MPa及以上八角环垫密封
垫片采用填充石墨的带内环的金属缠绕式垫片(完整摒弃了过往应用的橡胶石棉板),垫片密封可靠。拆装回复性能优良。重要零件材料:
闸阀根据不同的应用请求,以壳体材料为基础划分为:普通碳素钢(WCB)系列;Cr-Ni钢(304)系列;Cr-Ni-Mo钢(316)系列;低温钢(LCB、LCC)系列;Cr-Mo(V)高温钢系列;抗硫系列。其重要零部件材料如下表:
零件名称 碳钢类 抗硫类 不锈钢类 低温钢类 高温钢类 WCB WCB CF8、CF3 CF8M、CF3M LCB、LCC WC6,WC9,C5 阀体阀盖 A216-WCB A216-WCB A351-CF8,CF3 A351-CF8M,CF3M A352-LCB,LCC A217-WC6,WC9,C5 闸板 A216-WCB A216-WCB A351-CF8,CF3 A351-CF8M,CF3M A352-LCB,LCC A217-WC6,WC9,C5 阀座圈 A105 A105 A182-F304,F304L A182-F316,F316L A182-F304 A182-F304 阀杆、上密封 A182-F6a 318(MFG. NO.) A182-F304,F304L A182-F316,F316L A182-F304 阀杆螺母 A439-D2/ZQAl9-4 螺柱 A193-B7 A193-B7 A193-B8 A193-B8M A320-L7 A193-B16 螺母 A194-2H A194-2H A194-8 A194-8M A194-7 A194-4 填料 石墨填料 垫片 缠绕式垫片/软钢 手轮 球墨铸铁/铸钢注:所有铸件材料均按相应ASTM尺度;所有锻件材料均等效选用对应ASTM尺度的中国牌号
压力温度额定值
球阀的压力温度额定值不仅与壳体材料有关,而且更多地与阀座、填料及垫片等密封件材料有接洽。密封件可以是高分子材料、石棉或橡胶,密封件材料的选择取决于阀门所输送的介质成分、工作温度、工作压力和流速。
对于各种不可预知的工况,要准确地断定阀门的压力-温度额定值是极为艰苦的。根据我们长期的阀门制作经验和客户反馈的可贵看法,我们在此为你供给阀门在稳固工况下的压力-温度额定值。
注: 右图为WCB材料在CLASS150、300、400、600压力等级下的压力温度额定值。其他压力等级和其他材料的压力温度额定值请查ASME B16.34 浮动球阀先容
浮动球阀制作规范
内容 API 系列 GB 系列 基础设计规范 API 6D GB/T12237 压力温度等级 ASME B16.34 GB/T9131 结构长度 ASME B16.10 GB/T12221 法兰型式与尺寸 ASME B16.5 JB/T79 对焊接端 ASME B16.25 GB/T12224 检验与实验 API 598 JB/T9092浮动球阀的结构特点:
1、奇特的阀座密封结构多年的球阀制作经验与国内外先进技巧联合设计的双线密封阀座,可靠地保证了阀门密封。专业的阀座加工,使阀座摩擦系数低,阀门把持力矩小。
2、能唆使阀门开关状态的手柄 阀杆头部采用扁方结构,与手柄的连接不会错位,从而保证使手柄与球体的流量孔方向一致.
当手柄与阀门管线平行时,阀门处于开状态;
当手柄与阀门管线垂直时,阀门处于关状态。
3、锁定装置
为防止阀门开关受到误动作以及不可预知的线路振动而产生的不应有的开关动作,在阀门的全开和全关地位设有锁定孔,可用挂锁锁定阀门。特别是阀门安装在野外或在可燃性介质的石油类和化学药品的生产线,该锁定装置就会体现出其奇特的优胜性.
4、阀杆防飞结构
当阀门内腔压力上升时,阀体中腔的压力可能将阀杆推出。为防止这种情况产生,在阀杆下部设有轴肩,从阀体内部装进阀杆,防止阀杆飞出。这样,对于调换填料较为方便和安全。同时可在火灾后,介质压力将使阀杆法兰与阀体上密封面紧密接触,防止介质大批从损坏的填料部位处泄漏,起到瞬时密封的作用。
5、防静电设计当把持阀门时,由于球体和阀座之间的摩擦,会产生静电并积累在球体上。为防止产生静电火花,特在阀门上设置防静电装置,将开关过程产生的静电导出。该设计在阀门应用在燃点较低的汽油、自然气、丙烷等时将能够有效地防止事故的产生。
6、中法兰(阀体与左体连接部)无外漏结构
阀体与左体的连接部是靠垫片密封,为防止由于火灾、高温或振动等因素造成该处的泄漏,特设计为阀体与左体金属-金属接触,形成定止口法兰,保证无外漏。
7、防火结构当意外产生火灾时,阀座、填料等非金属材料将被烧坏,大批泄漏的介质可能更加增进火势。阀门的防火结构可禁止介质大批泄漏。在火灾后,各泄漏部位(球与阀体、阀杆与阀体、中法兰)设计成金属接触,满足防火请求。如图,一旦阀座被烧损,球体在压力作用下将直接和阀体上的金属面接触,从而禁止介质大批从烧损的阀座处泄漏.

重要零件材料:
零件名称 碳钢类 抗硫类 不锈钢类 低温钢类 WCB WCB CF8、CF3 CF8M、CF3M LCB、LCC 阀体左体 A216-WCB A216-WCB A351-CF8,CF3 A351-CF8M,CF3M A352-LCB,LCC 球体 A105-1025+HCr A105-1025+HCr A182-F304,F304L+HCr A182-F316,F316L+HCr A182-F304+HCr 阀杆 A182-F6a 318(MFG.NO) A182-F304,F304L A182-F316,F316L A182-F304 阀座 PTFE(尺度)/NYLON(高压)/PPL(高温) 填料 PTFE/PPL 垫片 PTFE/NYLON/PPL 轴承 PTFE/PPL 螺柱 A193-B7 A193-B7 A193-B8/B8M A193-B8/B8M A320-L7 螺母 A194-2H A194-2H A194-8/8M A194-8/8M A194-7M注:所有铸件材料均按相应ASTM尺度;所有锻件材料均等效选用对应ASTM尺度的中国牌号
压力-温度额定值
球阀的压力温度额定值不仅与壳体材料有关,而且更多地与阀座、填料及垫片等密封件材料有接洽。密封件可以是高分子材料、石棉或橡胶,密封件材料的选择取决于阀门所输送的介质成分、工作温度、工作压力和流速。
对于各种不可预知的工况,要准确地断定阀门的压力-温度额定值是极为艰苦的。根据我们长期的阀门制作经验和客户反馈的可贵看法,我们在此为你供给阀门在稳固工况下的压力-温度额定值。
A:纯PTFE B:加强PTFE
固定球阀先容
固定球阀制作规范
固定球阀的结构特点: 1、上游密封双向阀
固定球阀采用先进的弹簧预紧浮动阀座组件,上游密封的设计机理,无论阀门在低压、高压、真空下都能良好地实现密封。每只阀门有两个阀座,两个方向都能密封,因而安装没有方向的限制,无论阀门的哪端均可作为上游端是双向阀。(结构图详见图1)

图1 2、双阻塞排放阀
固定球阀处于全关状态时,高低游的阀座使流体完整阻断,可排放中腔的介质或积滞污物。而且,定期排放污物,可减少污物对阀门密封面的损伤,延伸阀门应用寿命。(结构图详见图2)

图2 3、中腔主动泄压
固定球阀应用弹簧预紧阀座,当中腔停止的介质呈现异常升压时,能压缩弹簧而主动泄压。(结构图详见图3)

图3 4、全通径或缩径
可根据需要选用全通径或缩径结构。全通径阀门流量孔径与管线内径一致,便于管线清扫。 5、防火结构
在意外产生火灾或异常升温使非金属阀座软化烧损时,特别设计的阀座支承金属密封面在弹簧载荷的作用下,与球体形成金属-金属接触,能够起到瞬时密封作用,符合API 6FA或API 607的规定。(结构图详见图4)

图4 6、帮助注脂阀
阀座及阀杆密封系统受损后,可通过注脂阀注进密封脂,起到暂时密封作用。(结构图详见图5)

图5 7、阀杆密封系统
在阀杆部位采用内外各两道O形密封圈实现密封,性能可靠。(结构图详见图6)

图6 8、阀杆加长
根据安装或把持的需要,可对阀门阀杆进行加长。加长杆球阀,特别实用于城市煤气等需要埋地展设管线的场合。加长阀杆尺寸按客户需要断定。 9、把持机动
采用具有小摩擦系数和良好自润滑性的特氟隆(TEFLON)阀座和阀杆轴承,大大地减少了阀门的把持扭矩。因此即使在没有供给密封润滑脂的情况下,也能够长期机动自如地对阀门进行把持。 10、多种把持方法
把持方法根据需要可选择手动、气动、电动、气液联动、液动等。
固定球阀重要零件材料
零件名称 碳钢类 抗硫类 不锈钢类 低温钢类 WCB WCB CF8、CF3 CF8M、CF3M LCB、LCC 阀体左体 A105-1025 A216-WCB A351-CF8,CF3 A351-CF8M,CF3M A352-LCB,LCC 压盖底盖 A105-1025 A105-1025 A182-F304,F304L A182-F316,F316L A182-F304 球体 A182-F6a+HCr A182-F6a+HCr A182-F304,
F304L+HCr A182-F316,F316L+HCr A182-F304+HCr A216-WCB+HCr A216-WCB+HCr A351-CF8,CF3+HCr A351-CF8M,CF3M+HCr A352-LCB,LCC+HCr 阀杆 A182-F6a 318(MFG.NO) A182-F304,F304L A182-F316,F316L A182-F304 阀座 PTFE/PPL 阀座支承圈 A105-1025+Zn A105-1025+Zn A182-F304,F304L A182-F316,F316L A182-F304 填料 PTFE/PPL 垫片 PTFE/PPL 轴承 PTFE/PPL 弹簧 3yc-7(MFG.NO) 螺柱 A193-B7 A193-B7 A193-B8,B8M A193-B8,B8M A320-L7 螺母 A194-2H A194-2H A194-8,8M A194-8,8M A194-7M
注:所有铸件材料均按相应ASTM尺度;所有锻件材料均等效选用对应ASTM尺度的中国牌号;HCr表现表面镀硬铬;Zn表现镀锌;
压力温度额定值
球阀的压力温度额定值不仅与壳体材料有关,而且更多地与阀座、O形密封圈、填料及垫片等密封件材料有接洽。密封件可以是高分子材料、石棉或橡胶,密封件材料的选择取决于阀门所输送的介质成分、工作温度、工作压力和流速。
对于各种不可预知的工况,要准确地断定阀门的压力-温度额定值是极为艰苦的。根据我们长期的阀门制作经验和客户反馈的可贵看法,我们在此为你供给阀门在稳固工况下的压力-温度额定值。
铸钢截止阀
铸钢截止阀制作规范
铸钢截止阀结构特点: 结构型式
铸钢截止阀采用明杆支架式,螺栓连接阀盖结构(OS&Y,BB型),旋转升降阀杆和手轮,是国际通用的截止阀结构。
阀体和阀盖阀体、阀盖的设计经过严格的盘算,具有良好的强度、刚度和流通才能。阀盖上设计了上密封座,在全开状态下使填料密封更为可靠,并方便填料的调换。 阀座和阀瓣
阀座与阀瓣采用平面或锥面密封情势。对于不同的压力或规格,阀座有以下几种情势:
1, 采用阀座圈与阀体螺纹连接或焊接,螺纹连接阀座易于拆卸,便于保护或调换;
2, 采用在阀体上直接堆焊密封面材料;
3, 对不锈钢阀门,其阀座密封面一般在阀体上直接加工成型。
阀杆与阀杆螺母阀杆与阀杆螺母的螺纹传动采用了适度的配合间隙和奇特的牙型修正处理,保证了阀门驱动的机动性和阀门封闭状态的自锁性。在阀瓣与阀杆头部接触处,镶嵌了一块硬质不锈钢材料,使该处不至于因挤压而变形,或因锈蚀而影响阀瓣动作的机动性。
填料填料的尺寸和数目符合尺度请求,并保证了密封的可靠性。填料采用石墨材料(不含石棉)。在用户请求时可供给填料隔环。(尺度型产品不供给填料隔环) 中法兰垫片
阀体、阀盖的连接采用螺栓连接的法兰情势。法兰密封垫片情势如下:
CLASS 150和PN1.6,2.5MPa 平面垫片密封
CLASS 300和PN4.0、6.4MPa 凹凸式垫片密封
CLASS 600及以上和PN10.0MPa及以上 八角环垫密封
垫片采用填充石墨的带内环的金属缠绕式垫片(完整摒弃了过往应用的橡胶石棉板),垫片密封可靠。拆装回复性能优良。
重要零件材料:
截止阀根据不同的应用请求,以壳体材料为基础划分为:普通碳素钢(WCB)系列;不锈钢(CF8、CF3、CF8M、CF3M)系列;低温钢(LCB、LCC)系列;Cr-Mo(V)高温钢系列;抗硫系列。其重要零部件材料如下表:
零件名称 碳钢类 抗硫类 不锈钢类 低温钢类 高温钢类 WCB WCB CF8、CF3 CF8M、CF3M LCB、LCC WC6,WC9,C5 阀体阀盖 A216-WCB A216-WCB A351-CF8,CF3 A351-CF8M,CF3M A352-LCB,LCC A217-WC6,WC9,C5 阀瓣 A105 A105 A182-F304,F304L A182-F316,F316L A182-F304 A182-F304 阀座 A105 A105 A182-F304,F304L A182-F316,F316L A182-F304 A182-F304 阀杆、上密封 A182-F6a 318(MFG. NO.) A182-F304,F304L A182-F316,F316L A182-F304 A182-F304 阀杆螺母 A439-D2/ZQAl9-4 螺柱 A193-B7 A193-B7 A193-B8 A193-B8M A320-L7 A193-B16 螺母 A194-2H A193-2H A193-8 A194-2H A194-8M A194-16 填料 石墨填料 垫片 缠绕式垫片/软钢 手轮 球墨铸铁/铸钢 注:所有铸件材料均按相应ASTM尺度;所有锻件材料均等效选用对应ASTM尺度的中国牌号
压力温度额定值
注:图为WCB材料在CLASS150、300、400、600压力等级下的压力温度额定值。其他压力等级和其他材料的压力温度额定值请查ASME B16.34 铸钢止回阀

铸钢旋启式止回阀制作规范
内容 API 系列 GB 系列 基础设计规范 ASME B16.34/API600 GB/T12236 压力温度等级 ASME B16.34 GB/T9131 结构长度 ASME B16.10 GB/T12221 法兰型式与尺寸 ASME B16.5 JB/T79 对焊接端 ASME B16.25 GB/T12224 检验与实验 API 598 JB/T9092铸钢旋启式止回阀结构特点: 结构型式
铸钢旋启式止回阀采用螺栓连接阀盖,单瓣旋启式,是国际通用的旋启式止回阀结构。
阀座 对于不同的压力或规格,阀座有以下几种情势:
1、采用阀座圈与阀体螺纹连接或焊接,螺纹连接阀座易于拆卸,便于保护或调换;
2、采用在阀体上直接堆焊密封面材料;
3、对不锈钢阀门,其阀座密封面一般在阀体上直接加工成型。 中法兰垫片
阀体、阀盖的连接采用螺栓连接的法兰情势。法兰密封垫片情势如下:
CLASS 600以下和PN10.0MPa以下 凹凸式垫片密封
CLASS 600及以上和PN10.0MPa及以上 八角环垫密封
垫片采用填充石墨的带内环的金属缠绕式垫片(完整摒弃了过往应用的橡胶石棉板),垫片密封可靠。拆装回复性能优良。
重要零件材料:
止回阀根据不同的应用请求,以壳体材料为基础划分为:普通碳素钢(WCB)系列;不锈钢(CF8、CF3、CF8M、CF3M)系列;低温钢(LCB、LCC)系列;Cr-Mo(V)高温钢系列;抗硫系列。其重要零部件材料如下表:
零件名称 碳钢类 抗硫类 不锈钢类 低温钢类 高温钢类 WCB WCB CF8、CF3 CF8M、CF3M LCB、LCC WC6,WC9,C5 阀体、阀盖、摇臂 A216-WCB A216-WCB A351-CF8,CF3 A351-CF8M,CF3M A352-LCB,LCC A217-WC6,WC9,C5 阀瓣 A105 A105 A182-F304,F304L A182-F316,F316L A182-F304 A182-F304 阀座圈 A105或A182-F6a A105 A182-F304,F304L A182-F316,F316L A182-F304 A182-F304 销轴 A182-F6a 318(MFG. NO.) A182-F304,F304L A182-F316,F316L A182-F304 A182-F304 螺柱 A193-B7 A193-B7 A193-B8 A193-B8M A320-L7 A193-B16 螺母 A194-2H A194-2H A194-8 A194-8M A194-7 A194-16 垫片 缠绕式垫片/软钢 注:所有铸件材料均按相应ASTM尺度;所有锻件材料均等效选用对应ASTM尺度的中国牌号
压力温度额定值
注:图为WCB材料在CLASS150、300、400、600压力等级下的压力温度额定值。其他压力等级和其他材料的压力温度额定值请查ASME B16.34
